Модульный домик
2 гостя
1 душ
Новый формат отдыха - модульные домики причудливой формы, напоминающей кубики. Концептуальный проект, разработанный архитекторами, для круглогодичного проживания.
Для тех, кому нравится глэмпинг.

Проект в процессе строительства. К проживанию доступны пока только два домика.
К сожалению, на данный момент проживание с домашними животными невозможно.


Цены и правила
Стоимость
День проживания
от 6 000 руб.
Поздний выезд
от 3 000 руб.
Правила проживания
Заезд
с 14:00
Выезд
до 12:00
Как они выглядят?
Когда достроим глэмпинг?
Строительство началось, но вмешались мировые новости, заставляющие сбавить темп работ. Удалось запустить только два домика. Мы считаем, что отдых должен быть доступным даже в такие тяжелые времена, поэтому не дождавшись финала, начали предлагать услугу проживания в домике по цене равной себестоимости. Здесь мы не сможем оказать заграничный сервис, но постараемся о Вас позаботиться, чтобы вы смогли немного сменить обстановку, разгрузить голову и полюбоваться живописной природой.


Стоит отметить, что в наших домиках есть две особенности:
  • Это не отель, а бюджетный дизайнерский "палаточный лагерь" на природе с минимальными гостиничными удобствами.
  • Вода в санузлах домиков из скважины, не питьевая.
Приехав в гости к нам в домик, вы помогаете нам построить глэмпинг классным! Спасибо:)



Часто задаваемые вопросы
  • Вопрос:
    Какие условия бронирования?
    Ответ:
    Предоплата при бронировании в размере 100%. Отмена бронирования без взимания штрафа осуществляется не позднее 7-ми дней до даты заезда. Штраф равняется стоимости первых суток.
  • Вопрос:
    Есть ли ранний заезд и поздний выезд?
    Ответ:
    Ранний заезд и поздний выезд согласовывается предварительно с менеджером бронирования день в день. Услуга предоставляется в случае свободных номеров. Стоимость 50% от цены номера за сутки.

  • Вопрос:
    На какой максимальное количество человек рассчитан домик?
    Ответ:
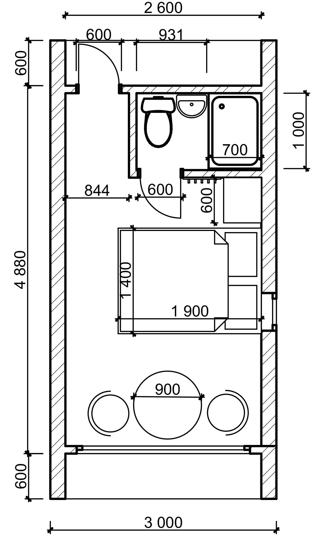
    Максимальная вместимость - 2 человека. Площадь всего домика 18.24 кв.м.

  • Вопрос:
    Есть ли WI-FI?
    Ответ:
    Да
  • Вопрос:
    Что есть в домике?
    Ответ:
    В модульном домике есть: предметы первой необходимости (туалетная бумага, мыло, освежитель воздуха), полотенце на каждого гостя, телевизор, чайник, чашки, чайные пакетики, питьевая вода.
  • Вопрос:
    Можно ли с животными?
    Ответ:
    Нет.
  • Вопрос:
    Какое отличие от других номеров парка-отеля?
    Ответ:
    Это не отель, это глэмпинг. Здесь гости живут в небольших домиках, напоминающих кубики. Представьте, что вы живете в дизайнерской палатке с минимальными гостиничными удобствами.
  • Вопрос:
    Какой вид из окна?
    Ответ:
    Вид на парк.
  • Вопрос:
    Какая комплектация домика?
    Ответ:
    Кровать 140*190, кресло, журнальный столик, панорамное остекление, стеллаж, разводка электричества внутри модулей, вентиляция, унитаз, раковина, душевой поддон, стеклянная дверка, тропический душ, смеситель, розетка в сан узле, полочка деревянная, внутреннее и декоративное освещение.
  • Вопрос:
    А что с парковкой?
    Ответ:
    Парковка бесплатная на территории парка-отеля